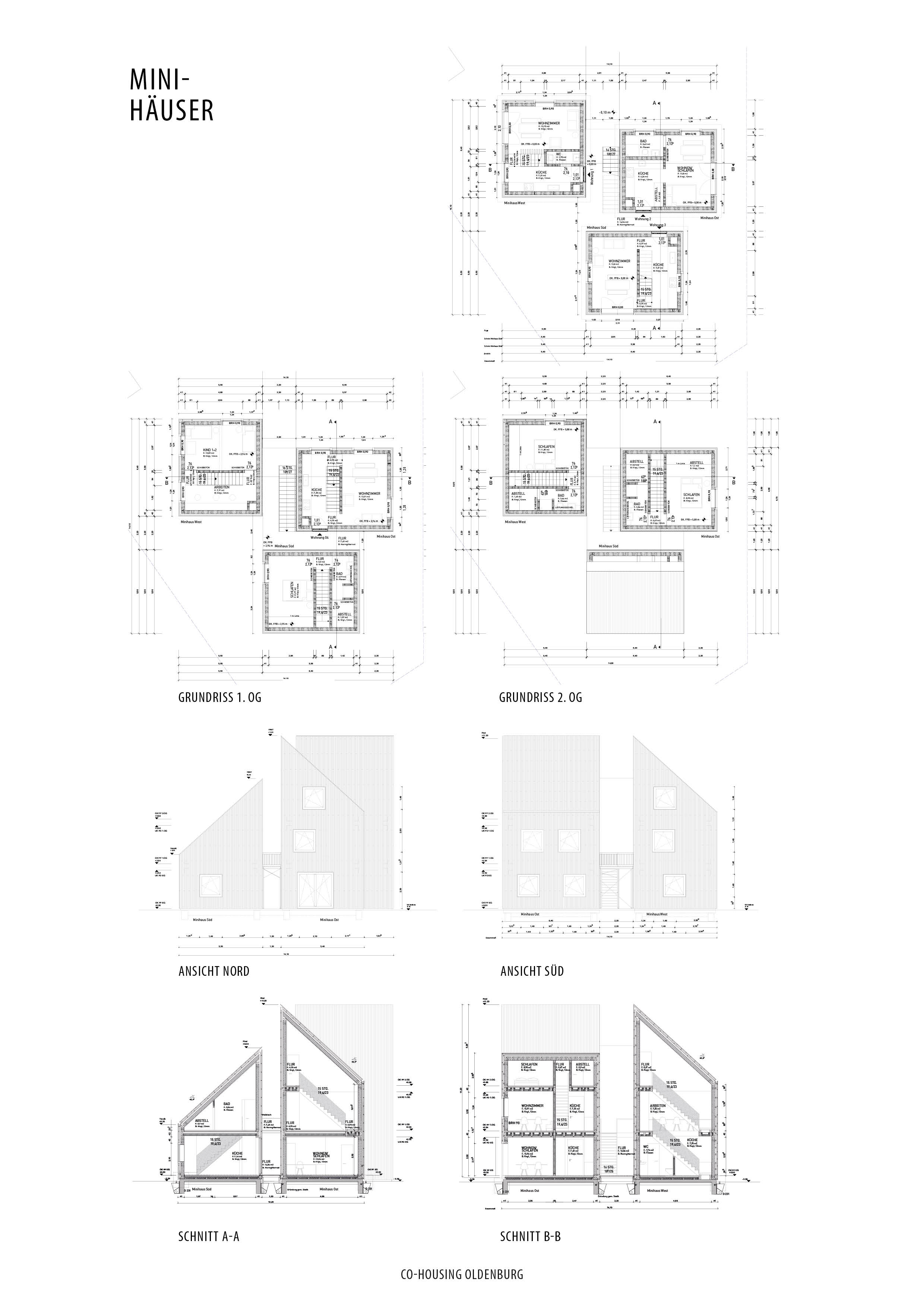
1.-4. Master-Semester
Hochbau | Baukonstruktion
Bei Prof. Ralf Pasel
Betreut durch Katharina Neubauer und Prof. Hans Drexler
TU Berlin | Jade Hochschule Oldenburg
J. Franke, S. Neumeier, A. Helming, N. Dikhanov, D. Degner, I. Er, F. Tropp (TUB)
M. Deilmann, H. Kolodziej, L. Hinrichs, A. Hauthal, A. Köller (JHS)
weitere Informationen







